Descrizione
Una vera e propria sauna Finlandese in legno di abete rosso tipo nordico ROBERTA con portico
Tutti i materiali utilizzati per questa sauna sono di qualità superiore.
La Sauna Finlandese Esterna ROBERTA con portico è la scelta perfetta per chi desidera un'oasi di benessere nel proprio giardino o terrazzo. Realizzata in legno nordico di alta qualità e vetro temperato, unisce design moderno, resistenza e comfort.
L'ampia finestra panoramica regala luminosità naturale e un'atmosfera unica, mentre il sistema di riscaldamento – disponibile con stufa elettrica o a legna Harvia – assicura un'autentica esperienza di sauna finlandese.
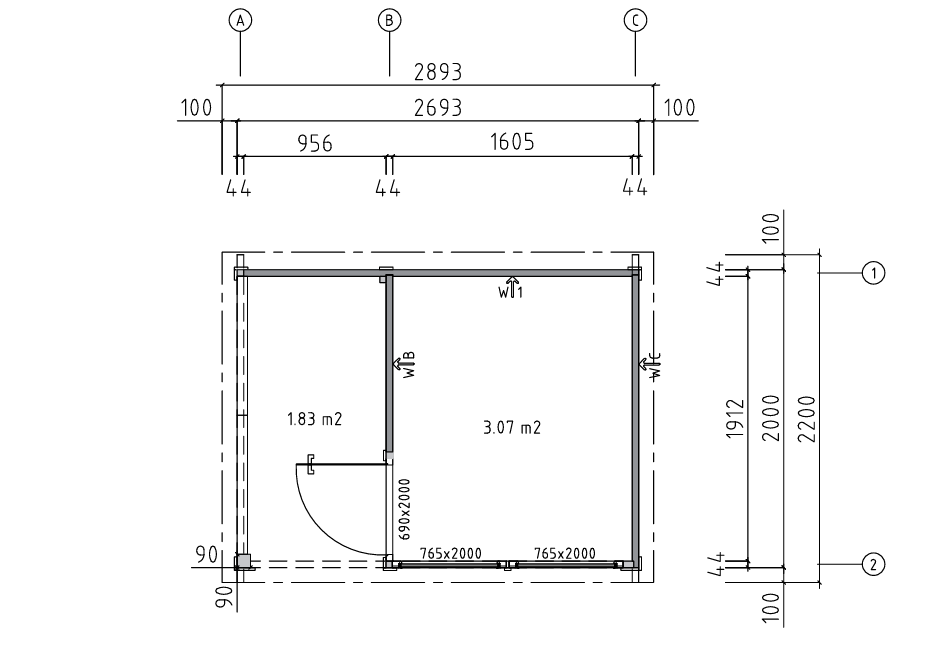
Con una superficie di 3,07 mq + 1,83 mq di portico, dimensioni di 269 x 200 cm e una capacità di 2-3 persone, la sauna ROBERTA è compatta ma elegante, ideale per trasformare ogni spazio esterno in un rifugio di relax e rigenerazione.
Facile da installare e progettata per durare nel tempo, viene consegnata in 6-8 settimane. La soluzione ideale per chi cerca una sauna esterna di qualità, sostenibile e dal design raffinato.
Saune prefabbricate in legno e casette da giardino direttamente dal produttore, senza intermediari.
Parametri technici
Zona sauna
3,07 mq
Profondita
200 cm
Larghezza
160 cm
Altezza
245 cm
Dimensioni esterne
269x200 cm
Spessore parete
44 mm
Tetto in legno
18 mm
Pavimento in legno
18 mm
Porta-finestra in vetro temprato
80x200 cm
Panche per sauna in ontano
Incluso
Isolamento termico del sofitto
Incluso
Qualità Nordica • Prezzo Accessibile • Relax Garantito

MATERIALE di ALTA QUALITÀ
Le nostre saune nordiche sono progettate per durare nel tempo, grazie all'utilizzo di legno di abete a crescita lenta, noto per la sua densità e resistenza naturali. Ogni tavola viene accuratamente selezionata per garantire stabilità e solidità. Il risultato è una struttura robusta e affidabile, capace di offrirti il piacere autentico della sauna finlandese per molti anni, con la stessa qualità del primo giorno.

PREZZO ACCESSIBILE
Con le nostre saune compatte nordiche trasformi ogni spazio in un rifugio di benessere e armonia. Il calore avvolgente e il profumo naturale del legno ti regalano momenti autentici di relax, proprio come nelle tradizionali saune finlandesi. E tutto questo con un prezzo accessibile, perché il lusso del benessere deve essere alla portata di tutti.

RELAX GARANTITO
Con le nostre saune compatte nordiche il relax è sempre garantito. Il calore avvolgente e il profumo naturale del legno trasformano ogni momento in un'esperienza autentica di benessere. Grazie alla qualità costruttiva e al prezzo accessibile, puoi goderti la vera sauna finlandese a casa tua, senza compromessi. Un'oasi di tranquillità, pronta ogni volta che ne hai bisogno.




